|
Z41X 明桿軟密封閘閥是一款手動閥,密封面可依靠介質產生的壓力而自行密封。即通過介質壓力將閘板密封面壓向寧一側的閥座密封面,從而使兩個密封面緊密結合確保密封性能良好,這也可稱之為自密封。相對于傳統閘閥的強制密封方式更加方便,工作效率也能大大提高。
一、Z41X 明桿軟密封閘閥工作原理: Z41X 明桿軟密封閘閥的啟閉件為閘板,閘板有兩個密封面,可依據閥門的參數而形成不同的模式閘板閥。明桿閘閥的閘板可做成一個整體來使用,稱為剛性閘板;或是改變為可產生微量變形的閘板,改善工藝性從而彌補在加工過程中產生的偏差,這種閘板叫做彈性閘板。 Z41X 明桿軟密封閘閥是通過轉動手輪,手輪與閥桿的螺紋進行進、退工作的情況下,提高或降低與閥桿連接的閘板,從而完成啟閉工作。這就是將旋轉運動轉變為直線運動,從力學角度來說明就是將操作轉矩變換為操作推力。
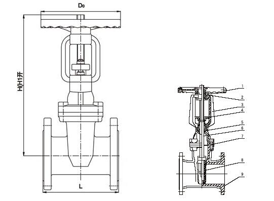
二、Z41X 明桿軟密封閘閥技術參數: 壓力等級:1.0MPa、1.6MPa 閥體耐壓:1.5MPa、2.4MPa 密封試驗:1.1MPa、1.76MPa 工作溫度:0~80℃ 適用介質:水、氣等 三、Z41X 明桿軟密封閘閥安裝事項: 1.明桿閘閥的手輪、手柄以及傳動結構是不允許做起吊使用,并且嚴禁碰撞,避免破損; 2.明桿閘閥應該垂直安裝,就是將閥桿安置在垂直位置,手輪放在頂端; 3.帶有旁通閥的明桿閘閥在使用前應該先將旁通閥打開; 4.帶有傳動機構的閘閥要按照指定的安裝說明書進行安置; 5.如果經常使用明桿閘閥,最少每個月就要進行清洗、潤滑一次。 四、Z41X 明桿軟密封閘閥型號主要參數: ![]() 五、Z41X 明桿軟密封閘閥圖片主要尺寸: ![]() 六、Z41X 明桿軟密封閘閥結構圖: ![]() |
-
球墨鑄鐵精密鑄造工藝而成
-
具有體積小,重量輕,性能可靠,配套簡單,流通能力大。
-
比普通鑄件重量減輕,強度增加,不易斷裂,不易出現漏水現象
-
三元乙丙材質的橡膠經過平板硫化技術整體包覆,彈性好不易脫落
-
采用三道O型密封圈密封設計,減少開和關時的摩擦阻力
-
整體烤漆,能有效防止銹蝕且只要更換密封閥座密封材料,就可使用于不同介質。




